Toggle navigation
Novogradnja SPO 235
O nama
Stanovi
GARAŽE
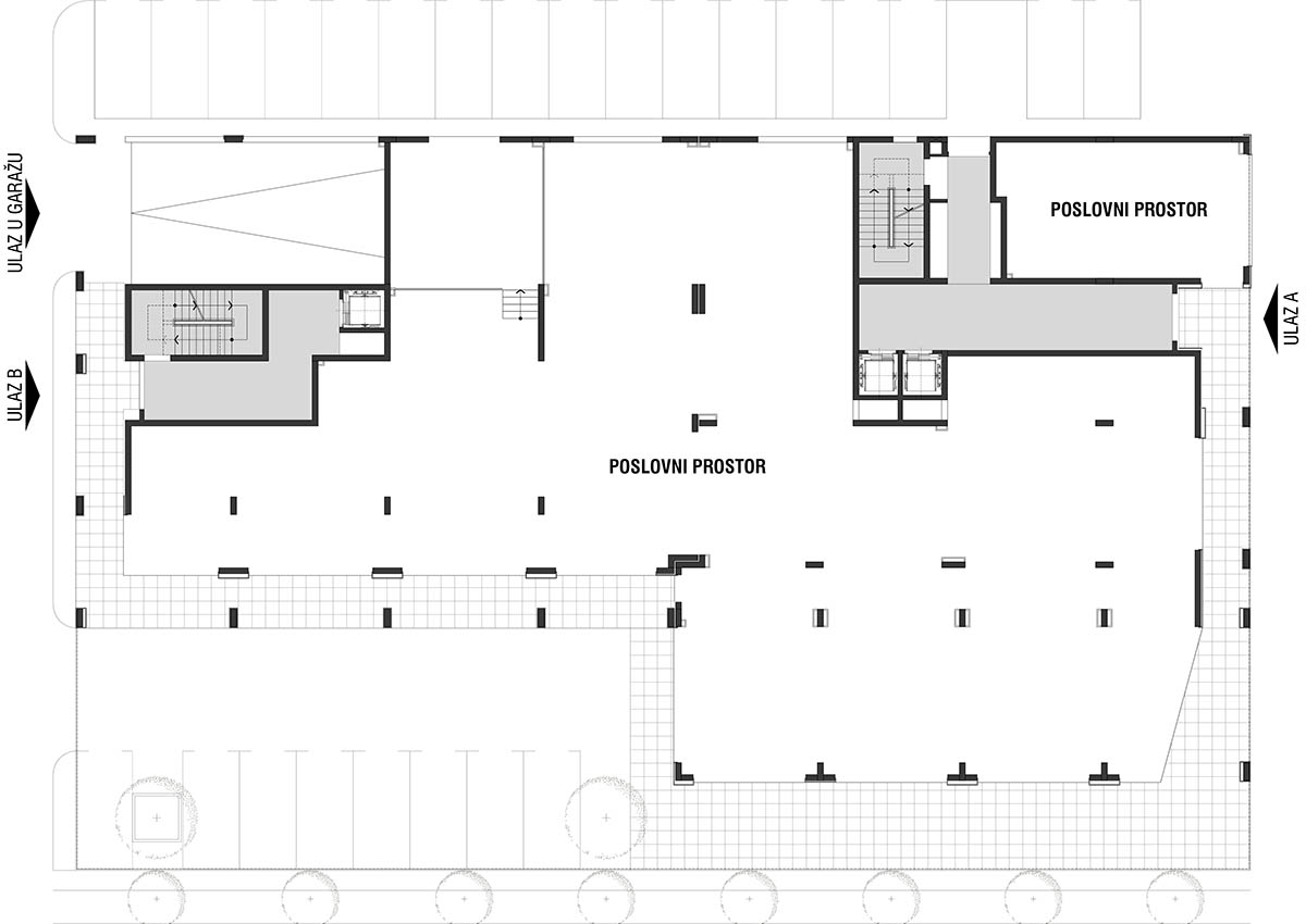
PRIZEMLJE
1. SPRAT
2. SPRAT
3. SPRAT
4. SPRAT
5. SPRAT
6. SPRAT
7. SPRAT
8. SPRAT
Galerija
Kontakt
SPO 235 - PRIZEMLJE